Omschrijving
Productinformatie
ToepassingÂ
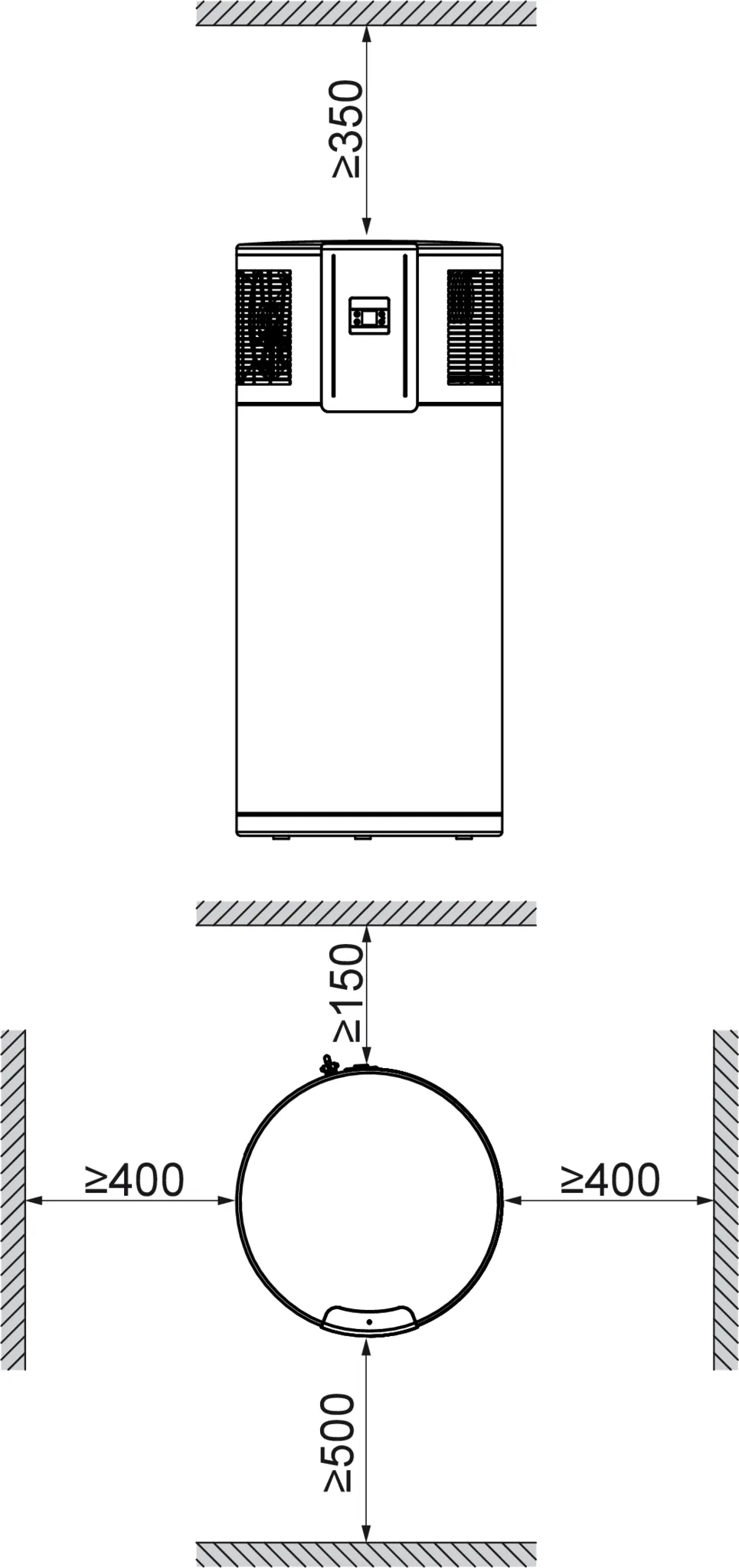
• De warmtepompboiler voor circulatiewerking kan meerdere tappunten op efficiënte wijze voorzien. Dankzij de compacte constructie heeft deze slechts weinig ruimte nodig.
• De afgegeven warmte van andere toestellen in de opstelruimte (bijv. diepvrieskist, droogautomaat, verwarming) wordt gebruikt om het energierendement van de volledige installatie te verhogen.
ComfortÂ
• De warmtepompboiler voldoet aan de vereisten van hoogwaardige lastprofielen. Hoe hoger het tapprofiel, hoe hoger het warmwatercomfort dat het toestel kan bieden.
• In zuivere warmtepompwerking zijn reeds hoge temperaturen mogelijk om warm water efficiënt en hygiënisch te bereiden.
• Comfortabele bediening dankzij de elektronische regelaar met LC-display, waarop het momenteel beschikbare volume mengwater kan worden afgelezen.
• Zeer stille werking dankzij de akoestische isolatie van de compressor uit de luchtstroom.
• De geïntegreerde gelijkspanningsanode verlaagt de kosten en verhoogt de veiligheid. De veergespannen Rollbond-warmtewisselaar zorgt voor veiligheid en een efficiëntere werking over de volledige levensduur van het toestel.
Combinatiemogelijkheden
• Via de ingebouwde contact ingang is het mogelijk bijvoorbeeld u eigen geproduceerde zonnestroom van uw zonnepanelen te koppelen aan de Warmtepompboiler.
• Dit houdt eigenlijk in dat de Warmtepompboiler alleen u eigen geproduceerde stroom verbruikt!
EfficiëntieÂ
• De installatie werkt zeer efficiënt. Alle toestellen van de serie behoren tot de momenteel hoogst mogelijke energierendementsklasse.
Kenmerken
Toebehoren
Documentatie
Beoordelingen








